0

T4/5 en duplex

Thônes (74230)
Réf : 1033A04

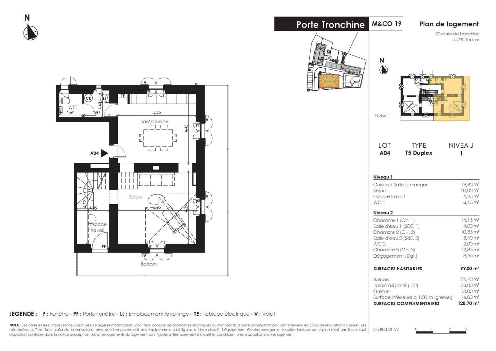
Appartement atypique de 100m² au 1er étage de cette ancienne demeure située proche du centre-ville de Thônes. Le projet de rénovation vous offre la possibilité d'avoir un bien neuf tout en gardant le charme de l'ancien. Avec un salon et cuisine de 40m² donnant sur un balcon en angle de 25m², un bureau, 3 chambres, 2 WC, 2 SdD, un grenier, un jardin de 74m², 2 places de parking et une cave pour compléter ce bien rare à la vente. Frais de notaire réduit à 2,5%. Pour tous renseignements contactez Alice Léguillette au 06.30.15.64.31

Prix du bien Nous consulter
Pièce(s) 4
Chambre(s) 3

Caractéristiques du bien

Caractéristiques Valeurs
Code postal 74230
Surface habitable (m²) 99 m²
Surface loi Carrez (m²) 99 m²
Nombre de chambre(s) 3
Nombre de pièces 4
Etage 1
Nombre de niveaux 2
Ascenseur NON
Vue Montagnes
Nb de salle de bains 1
Nb de salle d'eau 1
Cuisine Américaine
Mode de chauffage Electrique
Type de chauffage Radiateur
Format de chauffage Individuel
Balcon OUI
Cave OUI
Surface cave (m²) 1
Exposition Sud

Infos financières

Caractéristiques Valeurs