0
Vendu

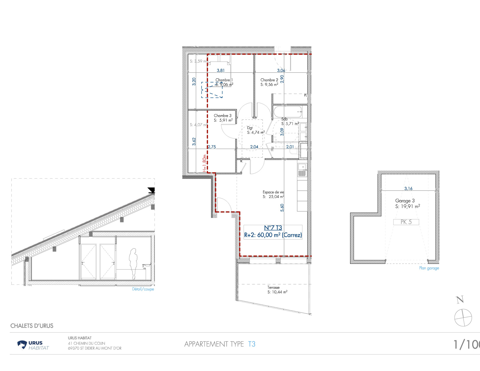
APPARTEMENT TYPE T3+COIN NUIT AVEC GARAGE PROCHE CENTRE VILLE

Saint-Jean-de-Sixt (74450)
Réf : APPT 7

SOUS COMPROMIS. Sur un secteur très ensoleillé de Saint Jean de Sixt, village familial très dynamique l'hiver comme l'été, à 500m des commodités et seulement 3kms des stations de skis de La Clusaz et du Grand Bornand, venez découvrir en EXCLUSIVITE cet appartement type T3+CABINE au 2ème et dernier étage d'une petite copropriété composée de 8 appartements. Exposé sud, il présente tout le confort des normes actuelles (RT 2012, NFC15100, isolation thermique et phonique, chauffage individuel par pompe à chaleur) et matériaux de qualité. cet appartement se compose d'une pièce de vie avec cuisine à équiper (arrivage eau et prises prévues) donnant sur un balcon de 11m², 2 chambres et un coin nuit, 1 salle de bains, WC . Vous pourrez garer votre véhicule dans un garage de 20m². et vos skis dans le casier prévu à cet effet. Livraison : fin 1er semestre 2023. Venez découvrir cet appartement avec DANIELE GEFFROY, AGENCE3V de Saint Jean de Sixt : 06.27.44.03.53

Prix du bien Nous consulter
Pièce(s) 3
Chambre(s) 2

Caractéristiques du bien

Caractéristiques Valeurs
Code postal 74450
Surface habitable (m²) 60 m²
Surface loi Carrez (m²) 60 m²
Nombre de chambre(s) 2
Nombre de pièces 3
Etage 2
Ascenseur OUI
Vue MONTAGNE
Nb de salle de bains 1
Interphone OUI
Balcon OUI
Nombre de garage 1
Cave NON
Exposition Sud

Infos financières

Caractéristiques Valeurs